Lot 653 – Twine Walk, Andrews Farm

Discover a place you’ll love to call home.

The Twine Walk Collection. With just five Torrens titled homes available, this exclusive release offers the rare combination of modern comfort and a peaceful reserve-side setting perfect for relaxed, everyday living.

  • 2.7m ceilings and a durable mix of brick, render and contemporary cladding
  • Stone benchtop kitchen with quality appliances and tiled splashback
  • Landscaped front and rear gardens with irrigation and fencing included
  • Timber-look flooring to living areas with carpeted bedrooms
  • Ducted reverse-cycle air conditioning with solar and energy-efficient systems
  • Secure garage with automatic panel-lift door and modern electrical inclusions

Stand-out features

Alfresco

Generous living and dining area

Walk-in robe and ensuite to master bedroom

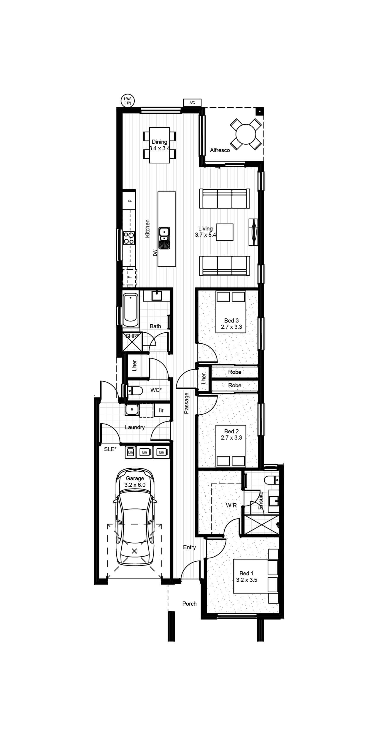
Floor plan & dimensions

House size 166㎡
Lot size 312㎡
Living
132㎡
Alfresco
6.39㎡
Garage
21.28㎡
Porch
6.33㎡

Lot 653 – Twine Walk, Andrews Farm

Open in Google Maps

Frequently Asked Questions

  • House and land packages in Adelaide combine the purchase of a block of land with the construction of a new home into one process. Customers select a plot of land and a home design that fits on that land, with the builder handling both the acquisition of the land and the construction of the house.

  • We offer competitive financing options through our finance partner, Truevest Finance. Truevest Finance assists customers in securing the financing needed for their house and land package. Truevest Finance provides tailored financial solutions, aiming to streamline the process and make homeownership more accessible.

Conditions apply. Certain elevations may not match the particular floor plan published in this package and, as such, all floor plans and elevations are for illustration purposes only. Land subject to availability. We make no representation and, to the extent permissible at law, we disclaim all liability, as to the suitability of the land to build on, or the suitability of any house design, or otherwise. You must satisfy yourself of that by inspection, or by taking professional advice, or otherwise. Pricing is indicative only and based on standard costings. Price may vary depending on selections, engineering, council and utility requirements and adjustments to allowances. All packages subject to final council approval. Rivergum Homes Pty Ltd ABN 70 065 466 337. Rivergum Property Sales Pty Ltd RLA 331121. Building License BLD 113681. © 2026 Rivergum Homes.

Leo Cuzman

Find out more about this package.