Lot 40 Michos Avenue, Panorama – Botanica

Step into the Botanica

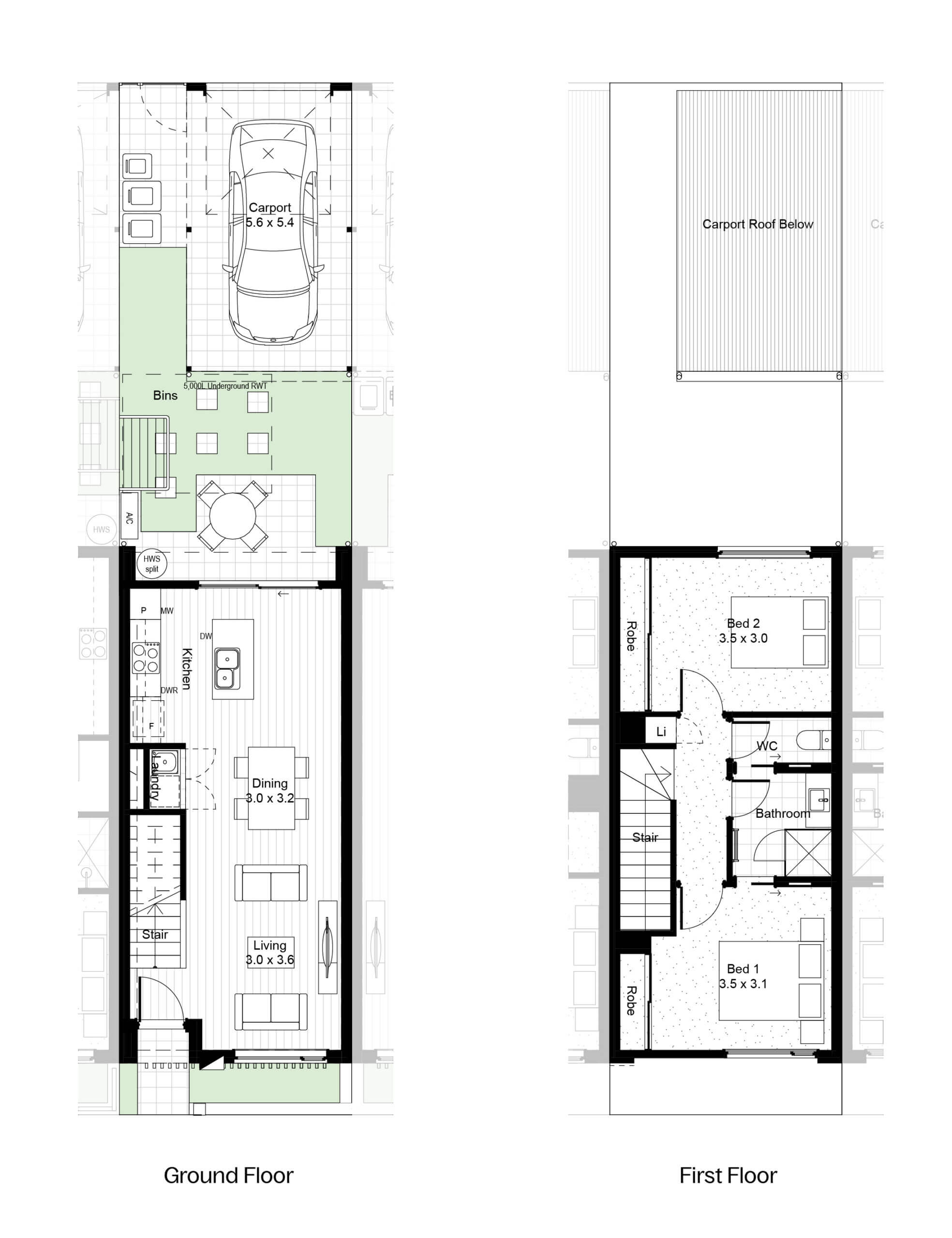
The Botanica is a stylish architecturally designed two-bedroom, one bathroom home that maximises space. Its open-plan living, dining, and kitchen area features an island bench, creating a bright and functional space for everyday life. A separate WC adds convenience, while the alfresco area with landscaping extends living outdoors. An underground 5,000L rainwater tank provides sustainable practicality without compromising design. Perfect for first home buyers or down sizers, this home offers a high-end, low-maintenance lifestyle.

  • Alfresco
  • Underground 5,000L rainwater tank
  • Separate WC to bathroom
  • Island bench
  • Open plan living/dining/kitchen on ground floor

Stand-out features

Generous open plan living and dining

Alfresco

Floor plan & dimensions

House size 104.60㎡
Lot size 90.00㎡
Ground Floor Living
41.50㎡
First Floor Living
44.60㎡
Carport
17.90㎡
Porch
0.60㎡

Lot 40 Michos Avenue, Panorama – Botanica

Open in Google Maps

Frequently Asked Questions

  • House and land packages in Adelaide combine the purchase of a block of land with the construction of a new home into one process. Customers select a plot of land and a home design that fits on that land, with the builder handling both the acquisition of the land and the construction of the house.

  • We offer competitive financing options through our finance partner, Truevest Finance. Truevest Finance assists customers in securing the financing needed for their house and land package. Truevest Finance provides tailored financial solutions, aiming to streamline the process and make homeownership more accessible.

Conditions apply. Certain elevations may not match the particular floor plan published in this package and, as such, all floor plans and elevations are for illustration purposes only. Land subject to availability. We make no representation and, to the extent permissible at law, we disclaim all liability, as to the suitability of the land to build on, or the suitability of any house design, or otherwise. You must satisfy yourself of that by inspection, or by taking professional advice, or otherwise. Pricing is indicative only and based on standard costings. Price may vary depending on selections, engineering, council and utility requirements and adjustments to allowances. All packages subject to final council approval. Rivergum Homes Pty Ltd ABN 70 065 466 337. Rivergum Property Sales Pty Ltd RLA 331121. Building License BLD 113681. © 2026 Rivergum Homes.

Tayla Taarnby

Find out more about this package.